Suchbegriff
Einleitung
Wir über uns
Allgemeine Grundlagen
Einbaurichtlinien + Montageanleitungen
Werkstoffe für Zargen
Beschichtungen
Dichtungen
Bandunterkonstruktionen
Mauerwerkszargen
Norm-Profile
Eckzargen
Umfassungszargen
Normal
gefälzt
stumpf
Radius
gefälzt
stumpf
Schattennut
gefälzt
stumpf
Doppeltürzargen
gefälzt
stumpf
Zierfalz
gefälzt
stumpf
Doppelfalz
gefälzt
stumpf
Dehnfugenzarge
gefälzt
stumpf
Turnhallenzargen
gefälzt
stumpf
Durchgangszargen
Durchgangszarge
Durchgangszarge mit Radius
Durchgangszarge mit Schattennut
Durchgangszarge mit Schttennut und Zierfalz
Anschlusszarge fuer Tuerelemente
Durchgangszarge mit verdeckter Dehnungsfuge
Durchgangszarge mit Dehnungsfuge, mit Duebelmontage
Pendeltürzargen
Pendeltuerzarge
Pendeltuerzarge nach Skizze
Pendeltuerzarge nach Skizze
Pendeltuerzarge
Pendeltuerzarge nach Skizze
Pendeltuerzarge nach Skizze
Bleiauskleidung
gefälzt
stumpf
schräge Leibung
gefälzt
stumpf
Schiebtürzargen
Mehrteilige Zargen
Oberlicht- Seitenteilzargen
Fensterzargen
Anker- Befestigungssysteme
Brandschutzfenster
Ständerwerk
Norm-Profile
Eckzargen
Umfassungszargen
Schiebetürzargen
Mehrteilige Zargen
Oberlicht- Seitenteilzargen
Fenster
Anker- Befestigungssysteme
Brandschutzfenster
Anhang
Schwellen
Obentürschliesser
Schlossbereich
E-Oeffner - Fluchttüroeffner
Magnetkontakte
Riegelschaltkontakte
Kabelübergänge
Mehrfachverriegelungen
BSS - Sperrelemente - Türspaltsicherung
Kippfenster - Schiebefenster
Montagevideos
Mauerwerkszargen einteilig
Mauerwerkszargen zweiteilig
Ständerwerkszargen einteilig
Ständerwerkszargen zweiteilig
Bestellformulare
Startseite
Mauerwerkszargen
Umfassungszargen
Doppeltürzargen
stumpf
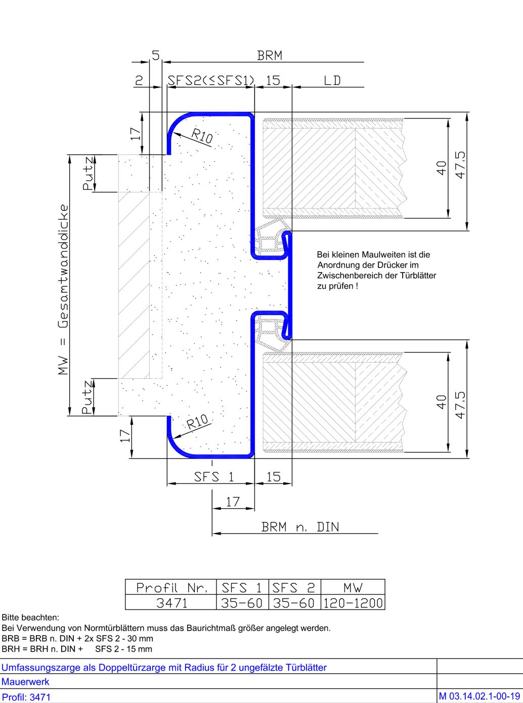
Doppeltuerzarge mit Radius
Norm-Profile
Eckzargen
Umfassungszargen
Normal
Radius
Schattennut
Doppeltürzargen
gefälzt
stumpf
Doppeltuerzarge
Doppeltuerzarge mit Radius
Doppeltuerzarge mit Doppelfalz. 2.FT 15
Doppeltuerzarge mit Doppelfalz. 2.FT 20
Doppeltuerzarge mit Doppelfalz. 2.FT 25
Doppeltuerzarge mit Radius und Doppelfalz. 2.FT 15
Doppeltuerzarge mit Radius und Doppelfalz. 2.FT 20
Doppeltuerzarge mit Radius und Doppelfalz. 2.FT 25
Zierfalz
Doppelfalz
Dehnfugenzarge
Turnhallenzargen
Durchgangszargen
Pendeltürzargen
Bleiauskleidung
schräge Leibung
Schiebtürzargen
Mehrteilige Zargen
Oberlicht- Seitenteilzargen
Fensterzargen
Anker- Befestigungssysteme
Brandschutzfenster
PDF Download
Copyright 2013-2024 Novoferm Vertriebs GmbH