Suchbegriff
Einleitung
Wir über uns
Allgemeine Grundlagen
Einbaurichtlinien + Montageanleitungen
Werkstoffe für Zargen
Beschichtungen
Dichtungen
Bandunterkonstruktionen
Mauerwerkszargen
Norm-Profile
Norm-Profile
Spiegelverbreiterung auf der Falzgegenseite
Eckzarge gefaelzt 21
Normzargen im Profil 21
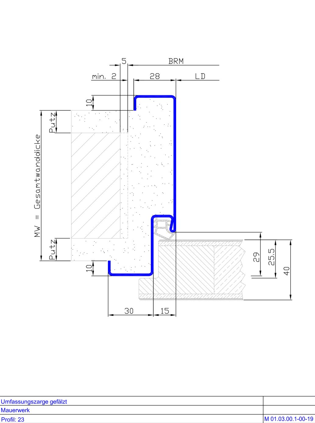
Umfassungszarge gefaelzt 23
Normzargen im Profil 23
Umfassungszarge gefaelzt 23-0045
Normzargen im Profil 23-0045
Eckzargen
Umfassungszargen
Schiebtürzargen
Mehrteilige Zargen
Oberlicht- Seitenteilzargen
Fensterzargen
Anker- Befestigungssysteme
Brandschutzfenster
Ständerwerk
Norm-Profile
Eckzargen
Umfassungszargen
Schiebetürzargen
Mehrteilige Zargen
Oberlicht- Seitenteilzargen
Fenster
Anker- Befestigungssysteme
Brandschutzfenster
Anhang
Schwellen
Obentürschliesser
Schlossbereich
E-Oeffner - Fluchttüroeffner
Magnetkontakte
Riegelschaltkontakte
Kabelübergänge
Mehrfachverriegelungen
BSS - Sperrelemente - Türspaltsicherung
Kippfenster - Schiebefenster
Montagevideos
Mauerwerkszargen einteilig
Mauerwerkszargen zweiteilig
Ständerwerkszargen einteilig
Ständerwerkszargen zweiteilig
Bestellformulare
Startseite
Mauerwerkszargen
Norm-Profile
Umfassungszarge gefaelzt 23
Norm-Profile
Norm-Profile
Spiegelverbreiterung auf der Falzgegenseite
Eckzarge gefaelzt 21
Normzargen im Profil 21
Umfassungszarge gefaelzt 23
Normzargen im Profil 23
Umfassungszarge gefaelzt 23-0045
Normzargen im Profil 23-0045
Eckzargen
Umfassungszargen
Schiebtürzargen
Mehrteilige Zargen
Oberlicht- Seitenteilzargen
Fensterzargen
Anker- Befestigungssysteme
Brandschutzfenster
PDF Download
Copyright 2013-2024 Novoferm Vertriebs GmbH